Conditions de vente
Dont prix de vente : 45 000 €
Dont HN* TTC à la charge de l'acquéreur : 5 000 € (11.1%)
Description
Immeuble à vendre - BAR SUR AUBE (10200)
À vendre à Bar-sur-Aube, au c?ur des villages viticoles champenois, cet immeuble mixte offre un beau potentiel de rénovation alliant activité commerciale et logement. Idéalement situé sur une rue passante, il bénéficie d'un emplacement privilégié pour développer un projet professionnel ou un investissement locatif.
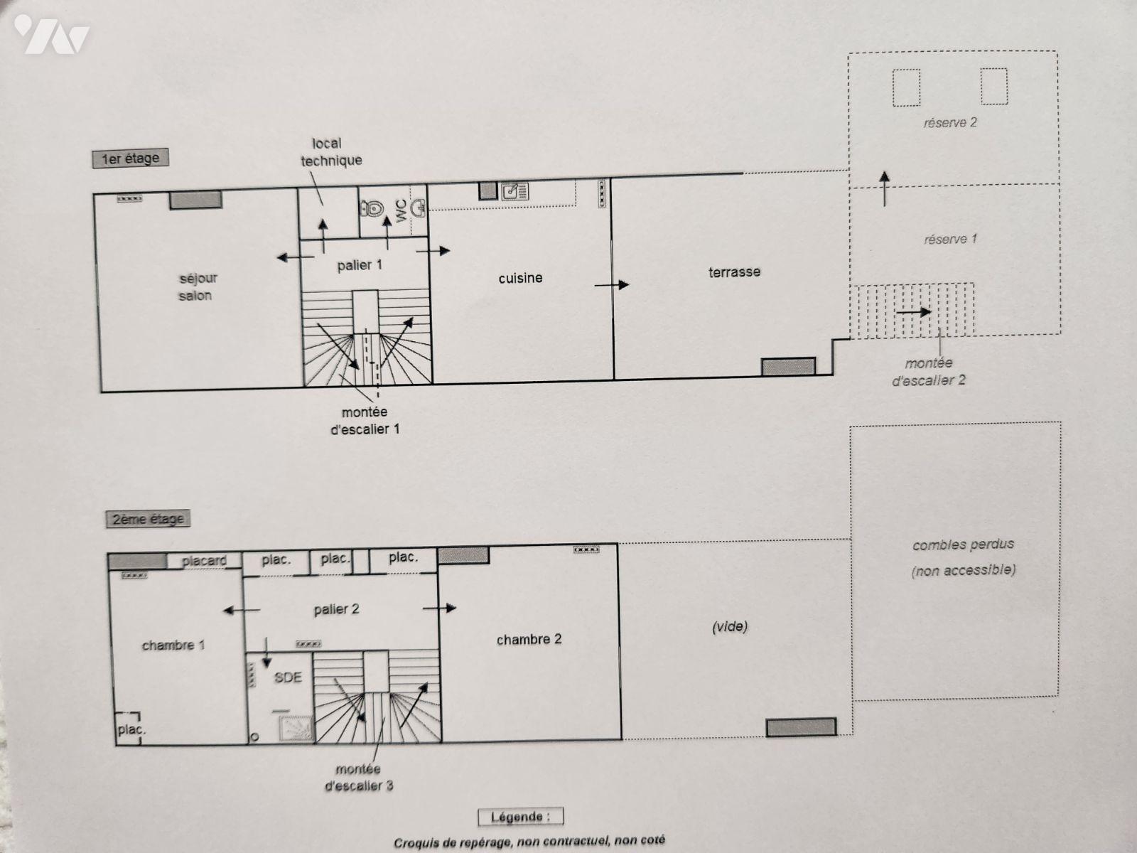
Le rez-de-chaussée comprend une surface commerciale de 68 m², accompagnée d'une devanture de 17 m² permettant une belle mise en valeur de vos produits ou services. À l'arrière, un escalier mène à une réserve de 16 m² et une pièce palière de 14 m², parfaites pour le stockage ou un espace de travail complémentaire.
Un second escalier, accessible depuis l'entrée, conduit à un duplex d'environ 57 m² composé d'un palier desservant un séjour de 16 m², un WC indépendant et une cuisine ouvrant sur une agréable terrasse de 23 m². À l'étage, un couloir dessert deux chambres de 10 et 11 m² ainsi qu'une salle d'eau avec douche.
L'immeuble dispose d'un chauffage central au gaz pour les deux parties et d'une toiture entièrement refaite en 2010, garantissant une base saine pour les futurs travaux. En sous-sol, une cave voûtée de 28 m² complète le bien, idéale pour le stockage.
Ce bien nécessitant des travaux de rénovation, séduira les amateurs de projets ou les investisseurs souhaitant redonner vie à un bâtiment de caractère.
Emplacement, potentiel et cachet : une belle opportunité à saisir à Bar-sur-Aube !
Visites : Sur rendez-vous.
Immobilier.notaires® : Evaluer, acheter & vendre avec les notaires partout en France. 12 000 notaires, experts et négociateurs vous accompagnent dans vos projets immobiliers en toute confiance.
| Ancien/Neuf | Ancien |
| Référence | 10064/10379/623 |
| Date de mise à jour | 24/10/2025 |
Diagnostics de performance énergétique
Estimation des coûts annuels des dépenses énergétiques
Dépenses théoriques annuelles d’énergie : entre 0 € et 0 €
Année de référence : 2021
*HN : Honoraire de négociation, hors frais de rédaction d'acte.
Pour les ventes, les prix sont affichés hors droits d'enregistrement et de publicité foncière.
**Honoraires de négociation TTC.
Pour les ventes, les prix sont affichés hors frais de rédaction d'acte, hors droits d'enregistrement et de publicité foncière. Pour les locations, les honoraires comprennent les frais de visite, de constitution de dossier et de rédaction de bail (Article 5 de la loi n°89-462 du 6 juillet 1989 modifié par la loi n°2017-86 du 27 janvier 2017 - art. 124)
Contacter l'office
Votre contact
Téléphone : 0325270587
Contacter par email


























